바보 같이 이전 글을 삭제해 버려 다시 제작한 관계로 Pt.1과 Pt.2의 포스팅 순서가 뒤바뀌어 있음
최근 홍콩의 낭만적인 시티스케이프를 담아낸 아마존프라임 <Expats 주재원> 촬영지 찾아서 (랜선으로...) 두 번째는 마가렛 (니콜 키드먼 분)의 집들이다 (편의 상 니콜이라 부르자). 그녀의 집들은 다음과 같다. 원래 가족과 사는 상류층 아파트, 그 집의 인테리어, 니콜의 아지트, 그 아지트의 인테리어, 마지막으로 니콜 키드먼이 촬영 중 진짜로 묵은 집. 총 5개.

1. 가족과 사는 상류층 아파트, Bisney Crest @ Sanday Bay
2. 그 상류층 아파트의 인테리어 @ L.A. studio
3. 니콜의 아지트, *****
4. 그 아지트의 인테리어, *****
5. 니콜 키드먼 촬영 중 숙소, *****
1. 가족과 사는 상류층 아파트, Bisney Crest @ Sandy Bay

Ep.1의 타이틀인 'the Peak'는 탁월한 뷰를 자랑하는 오래된 홍콩의 상류층 아파트와 빌라가 모여 있는 지역이기 때문에 이 에피소드의 시작이 뭘 의미하는지는 뻔하다. 다만 아파트는 더피크에 있지 않다. 위 사진은 마가렛 (니콜)과 같은 아파트에 사는 힐러리가 근처 조깅을 끝내고 집으로 돌아가는 신이다.

이 곳은 홍콩섬 서 쪽 샌디베이의 비즈니 크레스트 Bisney Crest라는 곳이다. 극 중 간판은 책과 같이 'Manors', 그리고 소유주인 'Chinachemp Group'의 로고도 볼 수 있다. 아마 오프닝의 조깅신은 홍콩 도심이 보이는 더 피크 쪽에서 찍은 것 같고 요 올라오는 신부터 이 비즈니 크레스트 지역에서 찍은 것으로 추정된다.

힐러리가 입구를 통해 현관을 들어가는 모습이다.

이 역시 구글지도로 줌인하여 확인해보니 입구 형태가 동일하다. 여기가 맞다.

심심해서 좀 더 찾아보았는데, 이 곳은 홍콩섬 서쪽의 란타우섬과 남서쪽의 라마섬 (주윤발의 고향이기도 함) 사이 방향의 탁 트인 오션뷰를 자랑한다. 정확한 지역은 Pok Fu Lam이다. 제일 좋아 보이는 160여평 형 가격을 보니 현재 기준 HK$199M (약 338억원)이다.


지도를 살펴보니 독채 6개 그리고 19의 유닛으로 구성되어 있다. 그나마 제일 작은 평 수인 45여평 (1630sqft)은 뷰는 보장이 안되는 것 같고 한화 약 71억 정도로 독채보다는 훨씬 저렴(?)하다.
Bisney Crest · 57 Bisney Rd, Sandy Bay, 홍콩
★★★★☆ · 아파트 단지
www.google.com
2. 그 상류층 아파트의 인테리어 @ L.A. studio


2021년에 촬영한 이 시리즈는 홍콩의 2014년 감성을 담으려고 노력했다고 한다. 공간들의 선택도 마찬가지다.

아마도 극 중 배경으로 자주 나오는 2014년의 홍콩 우산혁명과 이야기의 동선을 맞추고 싶었었기 때문일거다. 당시 주요 시위 지점들인 몽콕, 센트럴, 어드미럴티, 코즈웨이베이를 봐도 시리즈에서 서사가 펼쳐지는 공간들과 크게 벗어나지는 않는다.

아파트의 외부, 그리고 내부 중 복도 신 까지는 비즈니 크레스트에서 찍은 것 같다. 하지만 내부는 미국 L.A.에 만든 스튜디오 세트다. 이렇게 까지 공들여 실제 인테리어 세트를 만든 것을 보면 뭔가 촬영 스태프들의 기준에 맞는 하우스 인테리어를 찾지 못한 것 같다. 스쳐가듯 읽은 기사에서 촬영 로케를 위해 방문한 홍콩 고급 주택지들의 인테리어들이 좀 올드해서 스튜디오 셋을 진행했다는 인터뷰가 얼핏 기억난다. 그들이 생각한 2014년 홍콩 상류층의 공간의 감성이 무엇일지는 이 세트 안에 표현한 것 같다. 사실 2014년의 홍콩은 잘 모르기 때문에 공감은 잘 못하겠다.

그럼 나중에 목사가 집으로 찾아와 감탄한 "멋진 뷰~"는 어떻게 재현했을까. 바로 위처럼 360도로 파노라마 배경 사진을 깔았다고 한다. 하여 우리는 이 곳을 방문할 수는 없다.

시리즈 중 가장 인상적인 부분 중 하나는 '아마'를 다뤘다는 것. 아마는 광둥어로 ' 阿媽'의 발음으로 직역하면 '어머니'이지만 보통 가사 일을 돌보는 식모들을 말한다. 공식적으론 Helper 헬퍼라고 부른다. 현재는 '가사도우미'라는 표현도 있지만 '식모'라는 표현이 더 가까운 모습들을 봐온지라... 지금의 사정은 어떤지 모르겠다. 주로 필리핀 출신들이다.

홍콩의 일요일에 센트럴과 같은 지역을 가면 호화로운 호텔이나 럭셔리 매장들을 배경으로 널판지를 피고 옹기종기 모여 하루를 보내는 필리피노들이라는 참 대조적이고 모순적인 구도의 풍경을 자주 볼 수 있는데 처음 보면 충격이고, 살다보면 익숙해지는 풍경이다.

보통 주중에 가사도움 생활을 하고 매주 최소 하루는 1일 유급 휴가를 가지게 되어 (주로 일요일이나 공휴일에 쓰게됨) 나와야 하나, 딱히 묵을 곳은 없어 주로 센트럴 쪽에 서로 모여 이야기하고, 놀고, 노래부르고 하는데 솔직히 뭐랄까.. 밖에 있어도 흥에 겨운 겹고 밝게 살아가는 그들의 모습을 보았을때 꽤나 인상적이었다. 아마 또한 홍콩 문화에서 숨기고 싶어도 빼놓을 수 없는 부분일 것이다. 지금까지도 필리피노들은 음악을 참 사랑하는 민족이라는 기억이 남아 있다.

그럼에도 불구하고 지금까지 봐왔던 수 많은 홍콩 영화들 중 '아마'를 다루거나 배경 속에 등장하는 건 많이 보지 못했던 것 같다. 2011년 유덕화 주연의 'a Simple Life'가 직접적으로 이 문화를 다루며 세간의 관심을 일으킨 케이스 정도가 생각날 뿐이다. 저런 서양인들 뿐 아니라 상류층 동양인들도 다 아마를 고용했었는데, 지금은 좀 나아졌을지는 모르겠는데 그 시절에도 아마 학대, 언어/육체적 폭력, 혹은 아마와 바람나는 남편 뉴스들은 홍콩에서 심심치 않게 들을 수 있었다. (세상이 디지털화 되며 침실에 CCTV 설치 등등) 참고로 80년대부터 시작된 현상이고 당시 고용법 상 '거주'해야만 했다. 현재는 모르겠다.

보통 저 정도의 상류층 집들이면 집 마다 주 중 아마가 잠을 잘 수 있는 개인공간이 마련되어 있다. 하지만 극 중에서도 확인할 수 있듯 저 정도 규모의 공간에서 거의 작은 창고 수준의 공간이 제공된다. 이웃인 힐러리의 아마인 푸리의 공간이 그 것을 잘 표현 해 주고 있는데, 마가렛 (니콜 키드먼)의 아마인 에시의 공간은 생각보다 넓어서 놀랐다. 그 공간도 저 L.A.세트에 같이 구현된 것으로 보인다. 극 중 계속 마가렛(니콜 키드먼)이 자기의 아마는 가족의 일부 임을 주장하고 표현하는데 이건 뭐 극 중 캐릭터들도 (아마, 니콜, 가족, 외부인 모두) 그리고 관객들 마저도 쉽게 믿거나 공감이 될까 싶다.

극 중 전 날 저녁 술까지 마시며 그렇게 가족 같이 챙겨주던 힐러리가 다음 날이 되자 해장을 위해 자신의 아마인 푸리에게 아침상 차려 달라는 모습. 그리고 경연대회를 참가 못하게 생겼지만 다시 맘을 곱씹으며 현실을 받아들이고 흘러나오는 푸리의 대사, "토스트도 같이 드릴까요?" 그냥 딱 그 정도가 상류층 외국인이 이방인으로서 통상 동양을 바라보는 '그런' 시선들과 마인드들 중 하나의 좋은 예이기는 해 보인다. 비슷하게 계급사회에서 상류층이 중하류층을 바라보는 모습?

영화 <기생충>에서 그려지던 그 '넘지말아야 할 선' 정도로 생각해도 될 듯하다. 비슷한 예로 1970년대 한국의 근대화와 함께 부자, 벼락부자 등 상류사회의 문화도 같이 만들어지기 시작했는데 홍콩의 '아마'와 비슷하게 '식모'라는 직업이 같이 탄생했고 그 당시의 아파트 구조도도 또한 식모의 공간이 따로 마련되어 있다. (그 시절 삼순이=식모, 버스안내양, 공순이)

그들의 주 업무 공간인 부엌과 거실에 가깝고 나중에는 집주인들의 경험이 바탕이 되었는지 집안 사람들과의 동선을 최소화 시킬 수 있는 동선의 공간 설계로 진화까지하게 된다. <Expats>에서는 그 주인집 분들과의 겹침이 '최소화'된 동선의 공간을 간간히 확인할 수 있다.

김기영 감독의 1971년작, <화녀>에서도 이 식모의 주 공간이 부엌부터 시작하는 것을 볼 수 있다. 그리고 집안에서의 활동 영역이 확장되며 그 만큼의 서스펜스를 전개시키는 명작이다.

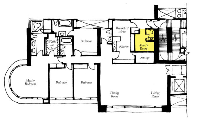
THE FUNAMBULIST 기사에 실렸던 홍콩 아마(헬퍼)를 배치하기 위한 한 고릅 아파트의 평면도다. 저기는 아예 대놓고 Maid's Room 가정부 방이라고 지정되어 있다. 당연히 침실과 같은 주인들의 프라이빗한 공간들과는 분리되어 있되, 부엌 그리고 다이닝 공간과는 가깝게 배치되어 있다. 물론 화장실도 개별.

위는 2023년 발표되고 인권을 무시한 디자인으로 많은 혹평을 받았던 홍콩 아마를 위한 가구 디자인이다. 너비가 68cm다. 저 사다리 위로 올라가서 자는 거다. 상류층만 가정부를 부리는 것이 아닌데 이게 또 무슨 문제를 발생시키냐면, 상류층에서 밑으로 내려올수록 돈이 당연히 없기 때문에 삶의 공간도 작아진다. 그 와중에 가정부를 위한 공간은 더 작아져야 할 수 밖에 없으니 이런 인권을 무시한 괴물같은 디자인이 나오기도 하는 것 같다.

홍콩은 전 세계적으로 알아주는 고밀도의 도시다. 삶을 위한 공간 확보는 비단 아마들만의 문제 뿐 아닌 모든 홍콩인들의 공통적인 문제다. 그런 맥락과 상황에서 이런 문제들이 발생하는건 그리 놀랍지 않을 수도 있다.
* 이전 아마존프라임 [Expats 주재원] 촬영지 찾아보기 포스팅:
1. Mercy의 행진 신 찾아보기
니콜 키드먼의 [Expats 주재원] 촬영지 찾아보기 Pt.1. Mercy의 행진 신
아마존 프라임의 니콜 키드먼 주연 의 한국어 제목은 이다. 근데 통상 '주재원'이라고 하면 회사에서 해외에 파견되어 일정 기간 동안 근무하는 직원을 연상시키기 때문에 제목이 좀 아쉽다. 이
electronica.tistory.com
'ART & DESIGN > 건축 Art, Architecture & Planning' 카테고리의 다른 글
| 아마존프라임 [Expats 주재원] 촬영지 찾아보기 Pt.4 : 카페와 바 (17) | 2024.09.29 |
|---|---|
| 아마존프라임 [Expats 주재원] 촬영지 찾아보기 Pt.3. 니콜 키드먼의 집들 02 (4) | 2024.09.03 |
| 니콜 키드먼의 [Expats 주재원] 촬영지 찾아보기 Pt.1. Mercy의 행진 신 (5) | 2024.08.11 |
| 왕가위 감독 데뷔 작 <열혈남아>의 홍콩 란타우섬 촬영지 찾아 본 이야기 ft.인터넷 (4) | 2024.07.26 |
| 드디어 구매한 손정목의 <서울 도시계획 이야기> (0) | 2022.01.11 |
